Loft autocad services

Loft Autocad Services is a professional autocad services company. We provide autocad services to businesses and individuals who need high quality, accurate and reliable autocad drawings. We have a team of experienced and certified autocad professionals who can provide you with the best autocad services. We use the latest autocad software and technologies to provide you with the best autocad services. We can provide you with custom autocad services, or we can provide you with autocad services for your specific needs. Contact us today to learn more about our autocad services.

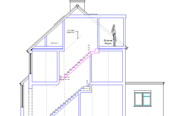
There are many companies that offer loft autocad services. These services allow you to create a 3D model of your loft space so you can better visualize how to use the space.

Overall, loft autocad services provide an accurate and efficient way to create 3D models of homes and other buildings. They are easy to use and can be a great asset for any homeowner or builder.

Top services about Loft autocad

I will design your sketches up to autocad drawing

I will design your sketches up to autocad drawing

Hello..I am civil engineer and designer with good working experience in drafting architecture drawings using Auto cad software. I am very pleasure to provide my service for you. Also I every time concern about the customer satisfaction.Area of working:Drawing your all plansConvert PDF files to CADPreparing all layoutsCreate 2d floor plan & elevationsCreate 2d site plan, roof plan & sectionBasic 3d modelingMechanical drawingsDetailingEspecially Loft conversion & ground extension drawings can be done by UK architecture. File formats- DWG, JPEG, PDF & customer request formats What I will need from you:Detailed brief for the drawingsSketches with dimensionsPDF that you need to convert to AutoCAD Why you will choose my service?Unlimited revisionExperienced drafting & good AutoCAD abilityAlways delivery on timeHighest quality workKindly & efficient customer serviceI expect to provide my maximum service for you..! Note: please contact me first your order. I will respond you as soon as possible. Thank you.
Check price
I will design your architectural floor plan in autocad

I will design your architectural floor plan in autocad

I redesign with Autocad 2D floor plans of your apartment, loft, villa. You only have to send me a sketch or photos. I'm an architect with licence with 12 years experience. I worked with many firms and engineereng office.
Check price
I will do loft and extension with planing and calculation

I will do loft and extension with planing and calculation

Hello I will draw architectural drawing 2d 3d and loft, extension    If you need a professional projects done in AutoCad, fell free to contact me. I will create a floor plans, elevations, sections and design home space for your taste. You can send me handmade drawing with or without measurements, JPG , PDF file or only sketch with description and I will do for you professional 2D AutoCad drawing. Let you check my gig here to be sure in quality of my work. ▶ For $5 I can create simply floor plan without furniture. If the projects are bigger and more complicated, please contact me in inbox and we can make an agreement and the best price. If your project includes a lot of drawings, we can make the best price per drawing. However, I'm good innovator and I enjoy to work on CAD projects. Every new project is new challenge for me. My goal is to make people satisfied, so you just need to contact me. Please, contact me before you order. Let's discuss about your project before we start our cooperation.
Check price
I will draw all architectural drawing of uk usa aus standards

I will draw all architectural drawing of uk usa aus standards

I will do all drawing by laws of UK councils. which includes existing & proposed floor plans, existing & proposed elevations, existing & proposed sections, existing & proposed roof plans, existing & proposed sections, existing & proposed site plans, existing & proposed loft drawings, hip to gable & dormer calculations, dormer sections, NOTE: pre-existing & as-built drawing are also the part of my work. i can finalize a file by its description for the council submission. For example i can do full 6 rooms HMO, Convert a house to a flat, drop kerb, Thames water, prior, CLP-loft, loft-b-regs, single dormer/double dormer, HH-ext, single story ext double story ext, out-building etc.
Check price
I will be your autocad architecture designer for 2d 3d loft designs

I will be your autocad architecture designer for 2d 3d loft designs

Welcome to AutoCAD Services I will draw AutoCAD drawings with 2D & 3D renderings for your project with details. ► Need a professional project done in Autocad? Feel free to contact me. I will create the floor plans, sections, and elevations. I will also design home space. ► You can send me handmade drawing with or without measurements. Send me JPG, PDF files or only Sketch with description. ► For $10, I will design a simple floor plan without furniture. If the projects are bigger and complicated, please contact me in the inbox and we can discuss the project and the best price. If your project includes a lot of drawings, We’ll offer you the best price per drawing. Let’s discuss your project. :)
Check price

I will produce drawings for UK planning permission and provide planing advice

null
Check price
I will do your structural engineering design

I will do your structural engineering design

null
Check price
I will do loft and extension with planing and calculation

I will do loft and extension with planing and calculation

Hello

I will draw architectural drawing 2d 3d and loft, extension
  

If you need a professional projects done in AutoCad, fell free to contact me. I will create a floor plans, elevations, sections and design home space for your taste.

You can send me handmade drawing with or without measurements, JPG , PDF file or only sketch with description and I will do for you professional 2D AutoCad drawing.

Let you check my gig here to be sure in quality of my work.

â–¶ For $5 I can create simply floor plan without furniture. If the projects are bigger and more complicated, please contact me in inbox and we can make an agreement and the best price. If your project includes a lot of drawings, we can make the best price per drawing.

However, I'm good innovator and I enjoy to work on CAD projects. Every new project is new challenge for me. My goal is to make people satisfied, so you just need to contact me.

Please, contact me before you order. Let's discuss about your project before we start our cooperation.
Check price
I will create uk planning permission drawings

I will create uk planning permission drawings

Hi, I am Zubair I am a AutoCAD technician working as a freelancer. I am doing various services as mentioned. I will draft uk council planning permission drawings,Rear extension, Side extension, Loft conversion with rear dormer, Garage conversion Household, Prior, Certificate of lawfulness planning, Full planning ,Lease plans, Location plans, Block Plan etc. Convert any hand sketch, pdf plan or any drawing in AutoCAD
Check price
I will convert anything in autocad

I will convert anything in autocad

Do you thinking to convert anything in autocad??

This is the right place !!

I can help you to convert anything in autocad.I am an autocad expert  and working in autocad from last 5 years.I can convert from old file to autocad,pdf to autocad, image to autocad, scan copy and hand-sketch to autocad.And if you need to do modify your drawing  please contact me I will provide for you.

For more drawing or complex drawing contact me before order.


WHAT IS DIFFERENT THAN OTHERS!!!
  • 100% Satisfaction guarantee.
  • Provide you the source file.


Contact me anytime.

Thank you!


Check price
I will do 2d and 3d architecture plans and mechanical objects

I will do 2d and 3d architecture plans and mechanical objects

I have wonderful experience in Autodesk AutoCAD applications. I will provide you quality work with AutoCAD in 2D and 3D. Either architectural or mechanical job, I have great skills and long time experience with AutoCAD. I have worked in 2004 to 2016 version in AutoCAD. So, feel free to contact me for everything you need in AutoCAD. Hope to hear from you very soon.
Check price
I will do 2d and 3d architecture plans and mechanical objects

I will do 2d and 3d architecture plans and mechanical objects

I have wonderful experience in Autodesk AutoCAD applications. I will provide you quality work with AutoCAD in 2D and 3D. Either architectural or mechanical job, I have great skills and long time experience with AutoCAD.  I have worked in 2004 to 2016 version in AutoCAD. So, feel free to contact me for everything you need in AutoCAD.

Hope to hear from you very soon.
Check price