Create architectural drawings online services

Creating architectural drawings online is a great way to get the perfect results for your home or office. There are many services available that can help you create the perfect drawings for your space. You can find services that will help you create a variety of different types of drawings, including floor plans, elevations, and even 3D models. You can also find services that will help you create a variety of different styles of drawings, including traditional, modern, and even contemporary.

There are many online services that offer to create architectural drawings. The quality of the drawings can vary greatly, so it is important to do some research before selecting a service. Some things to consider include the price, the turnaround time, and the reviews from other customers.

There are many online services that allow you to create architectural drawings. Some of these services are free, while others require a subscription. However, all of these services allow you to create drawings that can be used for both personal and professional purposes.

Top services about Create architectural drawings online

I will make 2d architectural drawings of house

I will make 2d architectural drawings of house

Dear Clint: > Do you want to Design your Dream space.? > Do you have a hand drawing/ sketch floor plan of your house/ building? > Do you have a set of drawings and want to proceed with BIM Modelling on Revit? Let me help you to Design it..! >I can design your dream space with also AUTOCAD. >I can make 2D and 3D model with REVIT based on your drawings and requirements such as: - 2D Drawings - Creating the 3D model of buildings - Making all detail drawings - Creating renderings by Revit - Work till you satisfaction - Unlimited Revisions - Free online 3D walkway (autodesk Viewer)Also, i can make your idea come true by realizing your intention in mind   You can send your floor plans details or hand drawn plans and I will make the model. *The above is the main outline, however each project is individual so make sure to contact me first, so we can discuss your requirements and time-frame and I will create a Custom Offer for you. Service Type      Floor Plans     Modeling     Rendering     Designing     Extra drawings
Check price
I will create architectural 2d floor plan in auto cad

I will create architectural 2d floor plan in auto cad

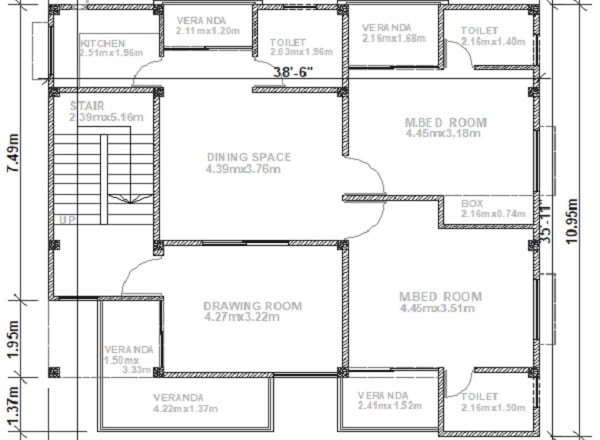
Floor plan or drawing 2d, is the most essential part of every architectural design and construction. Create your architectural floor plan in autocad 2d from me. I am offering you the best quality autocad 2d services.Feel free to Message me. Or just send me your site area dimension, or your idea sketch or reference images. Also you can feel free to send me other related information that you have about your project. My Services:Any Architectural Drawing in AutoCAD 2D2D Floor Plan Layout and Furniture LayoutPDF to AutoCAD DrawingSite Plan, Elevation, Detailing DrawingAll types of 2D Planning NOTE: Please, feel free to message me before creating any order. If I'm not online, do not worry. Just message me with all work details. I will respond to you as soon as possible.
Check price
I will create architectural 2d floor plan

I will create architectural 2d floor plan

null
Check price
I will create full architectural drawings for single family house

I will create full architectural drawings for single family house

You provide me with the following: 1) sketch of floor layout (maximum of basement, 1st floor, 2nd floor, attic) 2) exterior facade type (siding, brick, stucco, etc.) 3) description of additional detailed, wishes, desires. Ex. masonry fireplace in living room. Center island in kitchen. Craftsman cabinetry you like, etc. The more detail you provide me the more customized the house will be documented to your preference and taste.  I will deliver the following: 1) Foundation plans, sections, and details.  2) Structural floor/roof framing plans, sections, and details.  3) Zoning plans if zoning information available via. online websites. (zoning map & code required) 4) Architectural basement, 1st floor, 2nd floor plans. Limited finish schedules.  5) North, East, South, West exterior elevation drawings.  6) Architectural Site plans.  7) Demo plans and sections if needed.  8) Electrical plans, symbols, notes, schedules 9) Plumbing plans, symbols, notes, schedules, riser diagrams.
Check price
I will create architectural plans and blueprint designs

I will create architectural plans and blueprint designs

I have over 50+ years of experience in Civil Construction worldwide. Now, that I have retired, I wish to utilize my knowledge and continue to earn valuable companies/ customers and supervise their projects via this online portal.  If you have any queries regarding my gig please leave your comments in the inbox. I will get back to you ASAP. Thank you Saif Ur Rehman Senior Civil Engineer
Check price
I will do any architecture work online with a great discount

I will do any architecture work online with a great discount

Hi everyone, Welcome to my Gig! I am a graduated urban planner and I’ve a very good working experience in drafting architectural drawings using Auto CAD. I am offering to give you a professional job. All you need is to discuss with me the scope of the project and explaining to me what you want and I will get it done to your satisfaction with extra care to details. I will: draw 2D plans in Auto CAD programdraw elevations in Auto CAD program specific requests (details etc)draw the site plan n Auto CAD program based on a PDF file or existing survey (with an extra payment)draw interior elevations (with an extra payment) --> Notice: The price depends on floor area of your building and difficulty of your project. Please contact me and I will give the exact price for the specific project. Please contact me before ordering. We can talk more and make the decisions together in order to get a satisfying result. Have a lovely day! Jonida
Check price
I will prepare for building working architectural drawings

I will prepare for building working architectural drawings

About This Gig Hello and welcome to my Gig. I'm ABDUL MAALIK KHAN. I am a Civil engineer draftsman and 3d Visuliyzer with over 5 years of experience in AutoCAD and the Engineering field. If you would like to see my work, please visit this link https://www.behance.net/abdulmalikkhan I am a professional in AutoCAD Drafting and Engineering.  My services including:  ➤ draw building working plan ➤ 2d Elevation Details   ➤ section Details  ➤ layout and working dimension  ➤ Format: DWG / DXF / PDF / JPEG / MAX. ➤ Delivery: Less than 24 hours. Why Order me? ⏩  Client Satisfaction is my first priority. ⏩  24/7 Hours online support ⏩  Fast time Delivery with Acurency ⏩  100% commitment to work ⏩  Draw/Draft will be on the scale ⏩  Money-back guarantee.   ⏩  Quality work as promised. ⏩  Best quality  ⏩  Good communication  My Portfolio Link https://www.behance.net/abdulmalikkhan Regard's Abdul Maalik
Check price
I will provide architectural drawings, floor plan from any file

I will provide architectural drawings, floor plan from any file

Thank you for visiting my GIG! Hello, Are you looking for High-Quality 2d architectural drawings in Autocad from your idea/hand drawings/sketches or any other files ? Then you are at perfect place! Some of my services includes: Architectural Floor planElevationsSectionsConverting Hand sketch/old files into AutocadEdit/modification of your Architectural drawingAdd Details in Architectural drawings and many more Please fill free to contact with me. Why me ?An expert of Architectural drawings High-quality and punctual deliverySmart solution for your architectural problem Have experience over 4 years 7 days support After completing your order (for small changes.) Please do not place any order before contacting me for my availability. Regardswali
Check price

I will provide architectural plan, 3d exterior, section elevation,mep,autocad drawings

Hi everyone! Welcome to AW Architects. We are a group of Civil Engineers who can provide our best services in Architectural drawings. If you looking for an Expert Architect then you are in the right place. We are making AutoCAD drawings for the past three years. What we can provide?Architectural drawings including  [] Layout plan[] Furniture plan[] Schedule of openings[] Doors window schedule[] Proposal drawing[] Submission drawings[] Working drawings [] Completion drawings [] MEP drawings[] Section elevation drawing 3d exterior Why Us?[] 100% Quality Work[] On-time Delivery[] Can work with any type of data available We will design according to your requirement. So Kindly Contact Before Placing an Order Best Regards,AW Architects Architectural Drawings, Architectural Plans, Floor Plans, MEP Drawings
Check price
I will create autocad architectural drawings and floor plans

I will create autocad architectural drawings and floor plans

Hello there, I'm available to create AutoCAD 2d architectural drawings and floor plans according to your demand and will. You will get state of the art AutoCAD architectural drawings from an experienced creator. Why me? Creative AutoCAD 2d drawings/ floor planscustomer's satisfactionFast Delivery I'm looking forward to working with you. Moreover you can ask me anything without hesitation.Thanks
Check price
I will draw architectural drawing in auto cad

I will draw architectural drawing in auto cad

I will make 2D Architectural Drawings in Auto CADI have already work as an Architectural draftsmanMy service forFloor plansDetailed sectionsDetailed elevationFurniture layout planInterior floor plan and detailOther Architectural drawings
Check price
I will draw all your architectural ,structural drawings in autocad

I will draw all your architectural ,structural drawings in autocad

I am an Architectural & CAD  designer with 12+ Year Experience In this field & 7+ years Experience in Fiverr. I can design or draw any Architectural and CAD drawing you need with Professional Quality

*****Unlimited Revision, when you Satisfied *******

I can offer you a huge range of services in 

  • Architectural  Design.
  • Renovations Drawings
  • Plumbing Drawings
  • Electrical Drawings 
  • City or Council Approval Drawings
  • Structural Design
  • All  MEP Drawings
  • B.O.Q

This is for one drawings only. Cost depends on Drawing details. My ambition is to provide you to best Auto CAD Drawing.

+++ PLEASE CONTACT ME BEFORE YOU ORDER +++


 
Check price
I will do architectural watercolor sketch of plan,section,elevation of house, building

I will do architectural watercolor sketch of plan,section,elevation of house, building

Hi !I am a skilled architectural free-hand sketcher.I draw Architectural perspective drawings including; House plans/ Elevations / Sectional views/ Building plans drawings, with common watercolors. Special Notes;I do not deliver/ship the original drawings physically.I will send you the drawings in Jpeg format with 600ppi resolution.Size of the drawings will be A4, But if you have any requests please let me know.Please contact me before placing the order. Best regards,UVEN_ARTS
Check price
I will create architectural drawings 2d 3d in autocad and revit

I will create architectural drawings 2d 3d in autocad and revit

Hello, Welcome to Renaissance Studio of Design and Architecture, We are offering services to do Architectural Drawings i.e Floor plans, Sections and Elevations in Autocad and Revit, from the pdf, jpg, sketches, and from the Ideas in your mind.  Provide me the basic details of how you want your Floor plans, Sections and Elevations to be.A basic Drawings, floor plan, Sketch or few references to understand your requirements is all I need to create the beautiful Architectural Drawings for your house, office or commercial complex. I am at your service. So, order now.
Check price

I will do 2d architectural drafting in autocad

I will draw 2D drawings of your architectural drawings (floor plans, elevations, sections) with complete furniture layouts and dimensions. I can do 3D SketchUp drawings if the client wants to. kindly contact me on my inbox, if you are interested in my service... thanks
Check price
I will draw architectural drawings and blueprint for permit

I will draw architectural drawings and blueprint for permit

Thanks for visiting My Architectural Drawings Blue Prints;
In this Gig I will convert, Draw or Redraw ;
- Architectural Drawings set or blueprint to get permit for; new / home building, building / home remodel, home renovation  deck drawing, office layout plan 
- Blue Prints for permit
- Landscape design  
- or any kind of drawings.

The deliver of Architectural Drawings works will be DWG, PDF or JPG .

you can depend on me to design your dream home garden. and get a high quality  Architectural Drawings blueprint or Blue Prints which achieve  all your requirements.

Thanks.
Mohamed

Check price
I will create architectural and civil working drawing in auto cad

I will create architectural and civil working drawing in auto cad

Hi Sir, I am 20 years experience Autocad Designer and Design Assistant.I am Expert in AutoCAD Release 2007,2014 for 2D Design, 3D Modeling & Autodesk 3DS Max with Vray Rendering, Architectural Presentation Drawings, Approval Drawings, Construction Drawings, Details Working Drawings, Shop Drawings, Interior Drawings, Landscaping Drawings & Structural Construction Drawings, MEP (Mechanical, Electrical, Plumbing) Drawings for Residential Building, Commercial Tall Building, Factory, Educational Institute, Hospital, warehouse. I have worked in many Consulting Firm ,Construction Firm,& Real State Companies. I will give best & perfect jobs in proper time.
Check price