Best pdf to dwg converter services

PDF to DWG Converter is a type of software that allows users to convert their PDF files into the DWG format. This format is commonly used by CAD programs and is often required when exchanging files between different design programs. While there are many PDF to DWG converter services available, not all of them are created equal. This article will review the best PDF to DWG converter services and highlight the features that make each one stand out.

There are a number of different online services that offer PDF to DWG conversion, and it can be difficult to determine which one is the best. However, some key factors to consider when choosing a PDF to DWG converter service include the accuracy of the conversion, the speed of the service, and the price. Additionally, it is important to make sure that the service you choose is compatible with the software you are using.

There are a number of great PDF to DWG converter services available online, and it can be tough to decide which one is right for you. Ultimately, the best converter for you will be the one that best meets your needs and budget. we have compiled a list of the best PDF to DWG converter services to help you make your decision.

Top services about Best pdf to dwg converter

I will convert hand sketch or PDF to autocad file

I will convert hand sketch or PDF to autocad file

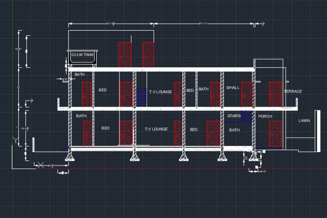
About This GigHello,I am a Professional Architect with 2 year of experience in AutoCAD 2d and 3d , Sketch Up , 3Ds Max and Photoshop. I am using AutoCAD and Photoshop to create the 2D colored plans.Please contact us If you want to ·     Redrawing your 2D floor plan·       Creating the professional drawing·       Creating the 2D colored plan·       Site Plan ,Interior and Exterior designThis gig is offering unlimited revisions 3D services are also available for my clientsI have much experience to create the 2D floor plan or 2D colored plan for Real Estate Agent. I have a team for working so we can manage a lot of work at the same time.We can discuss further about your project and we will give you the best price.Looking forward to work with you.Why you choose me? ·       Friendly communication·       High quality Drawing·       High Resolution·       Accurate ScalePlease contact before placing order to avoid any misconceptionKindest regardAli Haider+ See MoreProject ScaleBuilding
Check price
I will design architectural 2d,3d floor plan and convert pdf to autocad

I will design architectural 2d,3d floor plan and convert pdf to autocad

About This GigHello Everyone! I will design and render of 3d Floor plan.I will provide you Interior of each area in this gig.If you have your existing furniture i can model it in 3d & incorporate it in scene.You can share with me the color scheme which you like i will incorporate it.I will provide you realistic rendering which you can check in my gigs photos and video Please contact me before ordering. I would like to discuss the details first and after discussion I'll start my work. And feel free to ask me if you have any questions.  Best Regards Thanks + See MoreProject ScaleApartmentBuilding TypeResidentialCommercialOffice & WorkspaceImage File FormatJPGDWGDAEPDF
Check price
I will make 2d 3d autocad designs convert from pdf to dwg

I will make 2d 3d autocad designs convert from pdf to dwg

About This Gig!!!! ALL PACKAGE PRICES IS NOT FIXED !!!! Price will be based on your project. PLEASE CONTACT ME BEFORE YOU ORDER✪My services✓ Architectural FLOOR PLAN drawing✓ AUTOCAD drafting, PDF/Sketch to CAD✓ SITEPLAN, Elevations, Sections, roofing...AND much more!✪ Please forward me your sketch or ideas and we’ll make them professional ARCHITECTURAL drawings and FLOOR PLAN. ✪ Why choose our service?★ Professional & Experienced ARCHITECT and AUTOCAD EXPERT.★ SATISFACTION guaranteed.★ REVISIONS available while buyer 100% satisfy I am able to provide professional customer service and accessibility at any time. Please contact me before ordering... Thank you.+ See MoreProject ScaleBuildingBuilding TypeResidentialCommercialImage File FormatJPGDWGPDF
Check price
I will convert sketch or PDF to autocad, architectural floor plan

I will convert sketch or PDF to autocad, architectural floor plan

About This Gig>>>>>>>Before place order, please let me know briefly about the project.<<<<<<<<<< This GIG will provide you PDF to DWG, PDF to AutoCAD, AutoCAD Floor Plan, Redraw Floor Plan, Landscape Design. We have a large team to save your time. Always ready to do your project. Let me know your expected time and if you have any reference for AutoCAD Drawings.  Why this service best for you: - No extra or hidden charge for the source file.- Deliver always expected time.- Drawing changes even after completed order (If needed)- Drawings as per US, UK standards And Most important thing is, If you need a demo of our works, then we will always ready to do from your current files before place order.  What are you waiting for? Please feel free to ask if you have any questions. Regards Jahidul+ See MoreProject ScaleBuildingBuilding TypeResidentialCommercialOffice & WorkspaceImage File FormatJPGDWGPDF
Check price
I will convert PDF or jpeg drawing to autocad file dwg, dxf and dwf

I will convert PDF or jpeg drawing to autocad file dwg, dxf and dwf

Hello and welcome to my Gig.I'm Tarek Elkholy. I am a Civil engineer with over 7 years experience in AutoCAD and Engineering field.I have a master degree in Civil Engineering and professional in CAD Drawings and Engineering.  I offer Jpg or PDF to CAD conversion services to convert drawings (PDF, scanned drawings, hand sketches, diagrams, concept drawings) to AutoCAD .DWG, .DXF files and DWF. In order to achieve 100% accuracy.The sketch is manually re-drafted in AutoCAD taking the exact measurements from civil and architectural drawings. My services including:  Architectural, Civil, Industrial, Scientific CAD drafting services using AutoCAD.Architectural and engineering design of houses (FLOOR PLANS), buildings, construction details (concrete/steel) and anything you want.Format: DWG / DXF / PDF / JPEG.Delivery: You can ask FOR EXPRESS DELIVERY IN 24 HOURSWhy choose me?7 years of experienceBest quality Good communicationMoney back guarantee Note: Please do contact me before ordering any gig, so we can discuss the project and find the best solution for you. In this way, we can save a lot of time on both ends.Thanks!
Check price

I will redraw pdf, jpg to dwg,dxf with exact dimensions

Hi,You have PDF or JPG file (Floor Plans, Architecture, Logos, Text, Structures, Objects) and want to Converted it to a Printable DWG or DXF Editable File? Then you are at right place.Here is my gig.I will Convert your sketch whether JPG or Scans or PDF files into AutoCAD File . What I Can Do? Hand Sketches &PDF to DWG/DXF/DGN AutoCADConvert DWG file to JPG, PNG, PDF.HIGH-QUALITY WORK (GUARANTEED).Friendly communication and Fast response. This is NOT only conversion gig - I do NOT just convert your document and give you a trashy file.I will provide you high quality work.I know the importance of your drawings and data. I use professional software for best and accurate results. If you still have any questions or want to discuss prices for a custom project, don't hesitate in contacting me.Deliver in less than 24 Hours.Note: Contact me before placing an order.Thanks
Check price
I will convert your PDF or jpg to dwg or dxf

I will convert your PDF or jpg to dwg or dxf

You will receive any PDF or JPG file (Floor Plans, Architecture, Logos, Text, Structures, Objects) Converted to a Printable DWG or DXF Editable File. I will Convert your sketch whether JPG or Scans or PDF files to AutoCAD File. I can convert any file format: PDF to DWG AutoCAD. Convert PDF or Scanned Sketches into DWG, DXF (AutoCAD) or DGN (Microstation) file format.Convert DWG file to JPG, PNG, PDF.Add layers and appropriate colors.HIGH-QUALITY WORK (GUARANTEED)Unlimited revision to your satisfaction.Friendly communication and fast response. Always Provide Quality product. With 4 years of professional experience, I know the importance of your drawings and data. I use professional software for best and accurate results.✔ Message me if you're unsure or have project specific questionsIf you still have any questions or want to discuss prices for a custom project, don't hesitate in contacting me. If you like my service, don’t forget to save my gig by clicking on "Favorite" button from top right corner.Thank you so much.contact me before placing an order please
Check price
I will convert or edit any file,video audio into any other format

I will convert or edit any file,video audio into any other format

Hi, there is furansaadakram!! I will convert any  file to another filetype. I.e. AVI file to MP4 file or any other format. File sizes should be less than 100 MB per file. Ms Wrod to Inpage,PDF MP3 Converter | MP4 Converter | 3GP Converter | FLAC Converter | WAV Converter | AVI Converter | MPG Converter | MOV Converter | MKV Converter | DOCX Converter | PDF Converter | JPG Converter | FLV Converter | VOB Converter | Music Converter | Audio Converter | Video Converter | Image Converter | eBook Converter. The file could be a TEXT document ● csv ● doc ● eps ● odp ● odds ● pps ● ppt ● pptx ● ... and  many more Or it might be some AUDIO ♫ aac ♫ flac ♫ ram ♫ wav ♫ wma ♫ mp3 ♫ ... and many more It could be an EBOOK format ● cbz ● cbr ● cbc ● chm ● pub ● pml ● ... and many more It could be a compressed ARCHIVE ● zip ● tar ● 7z ● gz ● cab ● ... and many more Finally it could be a VIDEO file ● 3gp ● asf ● avi ● mpg ● flv ● ram ● rm ●  ... and many more again. If in doubt, feel free to contact me I will satisfy your questions
Check price
I will convert any file to different format in bulk

I will convert any file to different format in bulk

I will convert any two files to another filetype. I.e. AVI file to MP4 file or any other format. MP3 Converter | MP4 Converter | 3GP Converter | FLAC Converter | WAV Converter | AVI Converter | MPG Converter | MOV Converter | MKV Converter | DOCX Converter | PDF Converter | JPG Converter | FLV Converter | VOB Converter | Music Converter | Audio Converter | Video Converter | Image Converter | eBook Converter The file could be a TEXT document● csv● doc● eps● odp● odds● pps● ppt● pptx● ... and many more Or it might be some AUDIO♫ aac♫ flac♫ ram♫ wav♫ wma♫ mp3♫ ... and many more It could be an EBOOK format● cbz● cbr● cbc● chm● pub● pml● ... and many more It could be a compressed ARCHIVE● zip● tar● 7z● gz● cab● ... and many more Finally it could be a VIDEO file● 3gp● asf● avi● mpg● flv● ram● rm● ... and many more again. I will converter your video to audio Video Format :.mp3.aac.ogg.m4a.wma.flac.wav....more.. If in doubt, feel free to contact me prior to ordering.
Check price
I will convert a file to another format

I will convert a file to another format

I will convert any two files to another filetype. I.e. AVI file to MP4 file or any other format. File sizes should be less than 100 MB per file.

MP3 Converter | MP4 Converter | 3GP Converter | FLAC Converter | WAV Converter | AVI Converter | MPG Converter | MOV Converter | MKV Converter | DOCX Converter | PDF Converter | JPG Converter | FLV Converter | VOB Converter | Music Converter | Audio Converter | Video Converter | Image Converter | eBook Converter


The file could be a TEXT document
● csv
● doc
● eps
● odp
● odds
● pps
● ppt
● pptx
● ... and  many more

Or it might be some AUDIO
♫ aac
♫ flac
♫ ram
♫ wav
♫ wma
♫ mp3
♫ ... and many more

It could be an EBOOK format
● cbz
● cbr
● cbc
● chm
● pub
● pml
● ... and many more

It could be a compressed ARCHIVE
● zip
● tar
● 7z
● gz
● cab
● ... and many more

Finally it could be a VIDEO file
● 3gp
● asf
● avi
● mpg
● flv
● ram
● rm
●  ... and many more again.

If in doubt, feel free to contact me prior to ordering. 

Check price
I will convert psd, pdf, html, ai, svg, eps, jpg, bmp, doc, zip, rar, tiff file

I will convert psd, pdf, html, ai, svg, eps, jpg, bmp, doc, zip, rar, tiff file

Hi, well come to my gig.Do you want to change your file or document into different format / extension? I am professional graphics designer. I have a lot of experience this sector. I convert file 100% Professionally never quality loss. Thanks________________________________________________________Just for Keywords :file converter to mp3pdf converterfile converter downloadfile converter to jpgconvert pdf to jpgmkv to mp4 converter freevideo converter downloadconvert .flv to mp4convert jpg to jpeg formatconvert pdf to jpg onlineconvert pdf to jpgjpg to jpg converterjpeg to jpg onlinepng to jpgpsd into htmlpsd into jpg / jpegai into pdfai into epsai into psdai into pngai into jpg / jpegpsd into tiffai into tiffpsd into tgajpg into tgaai into cdrcdr into jpegavi into mp4avi into mpegvideo into mp4audio into mp3animation into mp4quick time into mp4mobile video into mp4
Check price
I will convert psd, pdf, html, ai, svg, eps, jpg, bmp, doc, zip, rar, tiff file

I will convert psd, pdf, html, ai, svg, eps, jpg, bmp, doc, zip, rar, tiff file

Hi, well come to my gig.
Do you want to change your file or document into different format / extension? I am professional graphics designer. I have a lot of experience this sector. I convert file 100% Professionally never quality loss.

Thanks
________________________________________________________

Just for Keywords :

file converter to mp3

pdf converter

file converter download

file converter to jpg

Check price
I will provide google reward redeem money converter apps

I will provide google reward redeem money converter apps

i will be make for you reward converter apps and you can improve your business by this apps and grow your financial support.  Reward Converter, Money Converter, Google Pay Billing, Google Redeem Reward, Ads, Reward, Rewards, Google Pay, Phone Pay, Paypal, Payoneer, Paytm,
Check price
I will psd to HTML converter using bootstrap within 12 hours

I will psd to HTML converter using bootstrap within 12 hours

#PSD to HTML ConverterJust let me know your requirements and you will get 100% perfect work That you want? #PSD to HTML Converter#PSD to HTML ConverterGig tag: convert PSD To HTML, Xd To HTML, PSD To bootstrap within 12 hours.  #PSD to HTML Converter#PSD to HTML ConverterOur Services :#PSD to HTML Converter PSD To HTML, Sketch to HTML, Xd To HTML, PSD To HTML Responsive website, PSD To Responsive HTML, PSD To HTML CSS, PSD To HTML Bootstrap, Image To HTML, PDF To HTML, AI To HTML, PNG To HTML, PSD To HTML5 CSS3, PSD To WordPress  #PSD to HTML Converter#PSD to HTML Converter#PSD to HTML Converter100% ResponsiveSEO friendly codeCSS pre-processor [SCSS] Support (Let me know if you want This support)  #PSD to HTML ConverterJavaScript task runner Gulp Support (Let me know if you want This support)Image file, PDF to HTML [With Condition]HTML5 , CSS3 Semantic Markup.Latest Bootstrap support.100%Pixel Perfect Conversion.Fresh, Clean, Soft, And well-Commented Hand code.100% W3C validated HTML, CSS Code.Cross Browsers Compatible.Upload to live server.Live preview support before delivering any project.100% Money-back gantry.Unlimited free revision.#psd converter
Check price
I will converter PDF, ebook, audio, images, docs etc

I will converter PDF, ebook, audio, images, docs etc

1) BASIC: 5 USD - Documents Converter (up to 10 files): I will convert any file with those extensions: DOC, DOCX, HTML, ODT, PDF, PPT, PPTX, RTF, TXT, XLSX, AZW, ePUB, FB2, LIT, LFR, MOBI, PDB, PDF, TCR, BMP, EPS, GIF, HDR/EXR, ICO, JPG, JPEG, PNG, SVG, TGA, TIFF, WPMP, WebP. Eg: PDF to Word, E-Book format, PowerPoint, Images (JPG, PNG etc)JPG to PNG, PDF, DOC, DOCX etcWord to PDF, E-book, Image etc 2) STANDART: 10 USD - Audio Converter (up to 50 audio tracks) I will convert up 50 audio files from-to any of those formats: AAC, AIFF, FLAC, M4A, M4R, MMF, MP3, OGG, OPUS, WAV, WMA 3) PREMIUM: 15 USD - Video Converter (up to 2 GB) I will convert as many video files as you want (with total size up to 2 GB) into any of those formats: 3G2, 3GP, AVI, FLV, MKV, MOV, MP4, MPG, OGV, WEBM, WMV. I can make your video file suitable for:Android, Blackberry, iPad, iPhone, iPod, Nintendo 3DS, Nintendo DS, Playstation, PSP, Wii, XBOX 4) EXTRAS: 5 USD Converting video files into audio filesGetting YouTube content and sending to you as audio or video files (priced for each 1 hour content, regardless how many links) Any question, INBOX before ordering.
Check price
I will currency converter android app for sell

I will currency converter android app for sell

Please check the app demo then order. Demo App Link :- https://play.google.com/store/apps/details?id=com.voicetranslator.currencyconvertercalculator In app using this website API for currency's live data :- https://currencylayer.com/ Currency Converter - Calculator android app I have created in android studio. Facebook Audience Network Ads Available For Online Earning.
Check price
I will android video editor all in one video editor app

I will android video editor all in one video editor app

VIDEO CUTTER : TRIMMER :-Cutter Tools Cuts With Simple Steps And Save File to Your Phone.Cuting fileWith Selected Time Intervals As You Like With Same file and Audio Quality.COMPRESSOR : RESIZER : -Compressor : Resizer Tools Allow You to Compress Your file Favorite and Share it to your Loved Ones.You can Compress : Resize The file ,See The Preview and Share it.MERGER : JOINER :-Merger : Joiner Tools Helps You to Create Single File From Multiple Small Files.MUTE :-Mute Tools is Used to Adjust The Volume of a file.MIRROR EFFECT :-Mirror Effect Tools Mirror file With Selected Time Intervals as You Like Without Reduce The Quality of the Sound.TO MP3 CONVERTER :-to MP3 Converter Tools Converts Any file to Audio as MP3 Audio and Save to Your Device.PLAYER :-HD Player Tools Playback Any Editing file. TO PHOTO CONVERTER :-to Photo Converter Tools Simple But Powerful Tools to Make Photo Editing & Image Converter on Your Device so Easy.ROTATE :-Rotate Tools Rotate a file in All Degree Such as 90,180,270 and 360.and other...
Check price